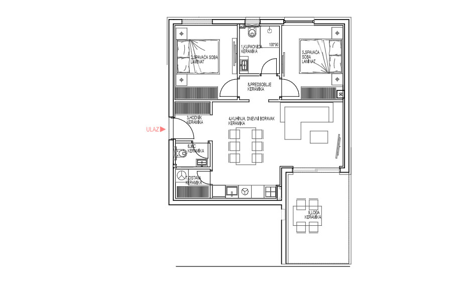
STAN S2 – PRODANO
Prizemlje: 68,36 m2 (terasa 10,3 m2, 1 parking mjesto, vrt od 23,45 m2, )
Objekt je u fazi izgradnje te je planiran dovršetak i useljenje ljeto 2025. godine
LOKACIJA
Prekrasan pogled na more i poluotok
Projekt stambene građevine se nalazi u Primoštenu, u ulici Glavičice 15
Parcela je blage kosine, padine prema jugu
Udaljenost od plaže i starog grada je cca 300m

ENERGETSKI CERTIFIKAT
Zgrada je projektirana da zadovolji energetski razred A
SADRŽAJ
Građevina se sastoji od 14 stambenih jedinica. Visina je definirana prizemljem, 1. katom, 2. katom i uvučenim 3. katom (Penthaus)
Osigurano je ukupno 14 parkirališna mjesta te je uz stan obavezno vanjsko parkirno mjesto
Priprema za punionica za električne automobile
Zajednički vrt
OPIS ZGRADE
Objekt je u fazi izgradnje te je planiran dovršetak i useljenje ljeto 2025. godine
KONSTRUKCIJA
Konstrukcija građevine je armiranobetonska. Vertikalni nosivi elementi su armiranobetonski zidovi i nosači debljine 20cm. Na svim spojevima, rubovima i sudarima zidova su vertikalni serklaži
Međukatne konstrukcije zgrade su armirano betonske ploče debljine 20cm u visini kojih su izvodeni horizontalni serklaži po nosivim zidovima.
Pregradni zidovi prostorija izvedeni po sistemu Knauf W112 (obostrano dvije gipskartonske ploče sa
potpunom ispunom mineralnom vunom–rezultira povećanom zvučnom izolacijom) gletano i bojano poludisperzivnom bojom
Svijetla visina kata (visina od gotovog poda do ab stropa) je 265 cm
Dimnjak
FASADA
Fasadni sustav od stiropora EPS debljine 15cm sa visokokvalitenom tankoslojnom silikonskom završnom žbukom
KROV
Ravni neprohodni krov i terase izolirani su hidroizolacijskim folijama najnovije generacije, te krov toplinskom izolacijom debljine 15 cm
VANJSKA STOLARIJA
PVC stolarija REHAU Synego, troslojno IZO staklo, rolete na elektro-motor, komarnici u kutiji roleta prozora
OKOLIŠ
Popločeni pješački dijelovi na terenu
Predviđeno zasebno mjesto za smještaj smeća
Zelene površine hortikulturno uređene
Zajednički vrt
OPREMA STANA
STOLARIJA
Ulazna vrata u stan u protuprovalnoj i protupožarnoj izvedbi Dierre, Asso EI2-30 (otpornost na požar 30 minuta i dodatno pojačanom zvučnom izolacijom)
Unutarnja moderna sobna vrata visoke kvalitete, skriveni panti, magnetna brava
PODOVI
Visoko kvalitetan laminat klasa 33, debljine 12mm u spavaćoj sobi
Keramičke pločice I klase talijanskih proizvođača u sanitarnom čvoru, kuhinji, dnevnoj sobi, hodniku i lođi
ZIDOVI
Keramičke pločice I klase talijanskih proizvođača u sanitarnom čvoru
Bojani zidovi bijelom poludisperznom bojom u ostalim prostorima
KUPAONICA
Oprema kupaonica/sanitarije od renomiranih proizvođača visoke kvalitete
Ugradbeni vodokotlići
Podno grijanje sa WiFi modom
ELEKTROINSTALACIJE
Elektrooprema je visoke kvalitete poznatih proizvođača
U svim sobama predviđene su TV i internet utičnice
Elektrooprema kuhinje: izvod za stropno svjetlo, izvod za štednjak, utičnica za hladnjak, utičnica za perilicu suđa, utičnica u pojasu iznad radne plohe te izvod za kuhinjsku napu
Elektrooprema kupaonice: izvod za stropno svjetlo, priključnica za perilicu rublja, izvod struje za nadsvjetlo iznad umivaonika, utičnica sa zaštitom od vode
Termostat, telefonske i TV utičnice
Izvod struje i rasvjetno tijelo na lođama
Instalacija zajedničkog antenskog satelitskog sustava
Mogućnost priključenja kablovske televizije
UTP kabel i prostor za optički kabel internet priključka
HLAĐENJE I GRIJANJE
Sve sobe opremljeni su PANASONIC / inverter klima uređajima/ wi-fi mod sa 10 godina garancije na cijeli klimatizacijski sustav
Digitalni termostat

